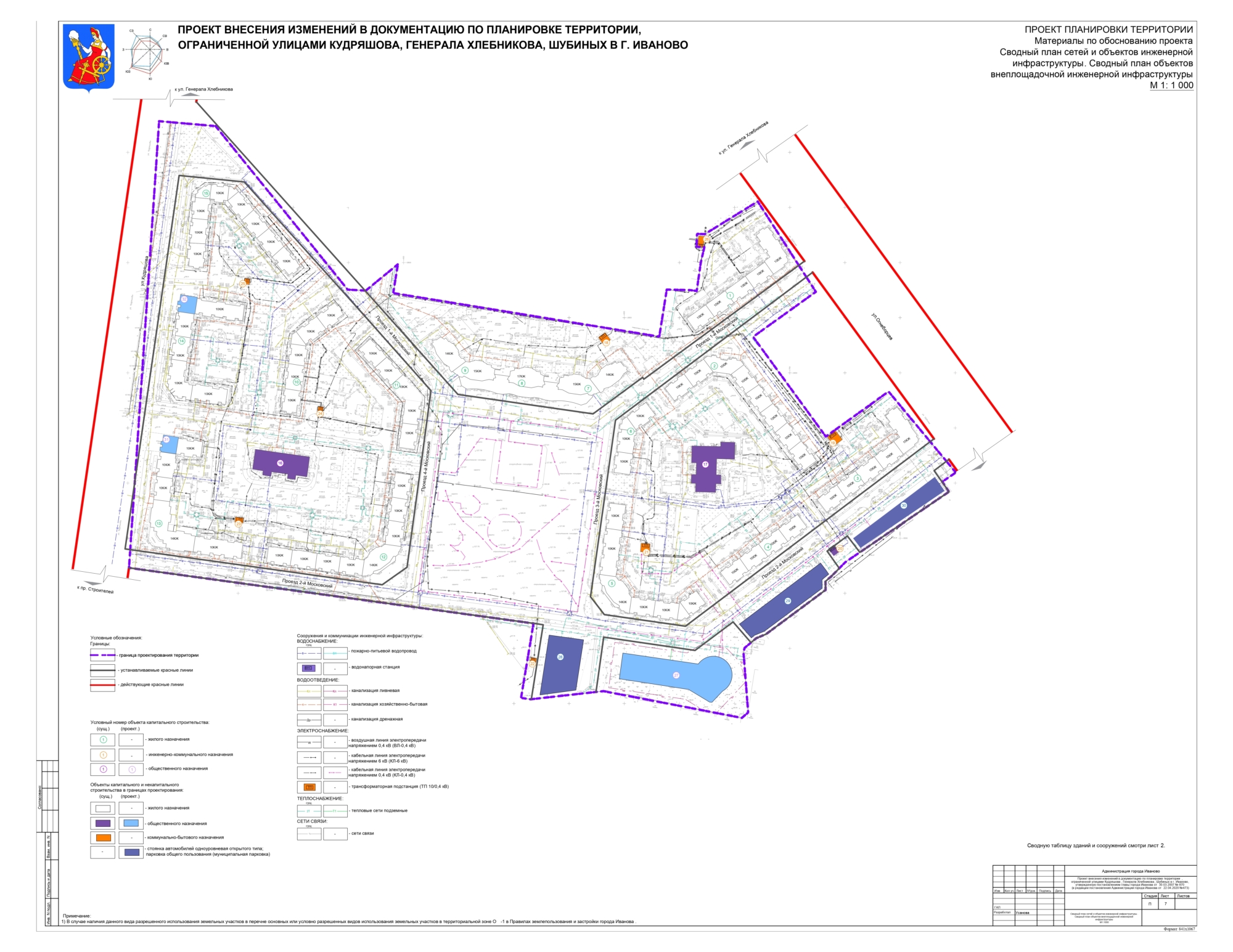
Проект внесения изменений в документацию по планировке территории (проект планировки территории, проект межевания территории), ограниченной улицами Кудряшова, Генерала Хлебникова, Шубиных в г. Иваново, утвержденную постановлением Главы города Иванова от 30.03.2007 № 870 (ред. от 22.04.2020) «Об утверждении проекта планировки и проекта межевания территории, ограниченной улицами Кудряшова, Генерала Хлебникова, Шубиных в г. Иваново»
Флаг Здание Официальный сайт администрации города Иванова (архив) Официальный сайт администрации города Иванова (новая версия)
Версия для слабовидящих
Контактная информация ПРОТИВОДЕЙСТВИЕ КОРРУПЦИИ ОТКРЫТЫЕ ДАННЫЕ Защита от чрезвычайных ситуаций ОПОВЕЩЕНИЕ НАСЕЛЕНИЯ Действия населения при подтоплении территории Действия населения при выбросе в атмосферу химически опасных веществ Действия населения при неблагоприятных погодных явлениях Телефоны экстренных служб "Горячая линия" по вопросам нарушения трудового законодательства Документы по организованной перевозке групп детей автобусами Отловленные животные 2022 Отловленные животные 2023
Жалобы на всё
Не убран снег, яма на дороге, не горит фонарь? Столкнулись с проблемой — сообщите о ней!

Внесение изменений в документацию по планировке территории (проект планировки территории, проект межевания территории), ограниченной улицами Кудряшова, Генерала Хлебникова, Шубиных в г. Иваново, утвержденную постановлением Главы города Иванова от 30.03.2007 № 870 (ред. от 22.04.2020) «Об утверждении проекта планировки и проекта межевания территории, ограниченной улицами Кудряшова, Генерала Хлебникова, Шубиных в г. Иваново»

Постановление Администрации города Иванова об утверждении документации по планировке территории от 28.10.2021 № 1247

1. Основная часть:

      

2. Обосновывающая часть:

      
      
      
      
      
      
      

3. Проект межевания:

      
      

Назад

Администрация г. Иваново

Яндекс.Метрика