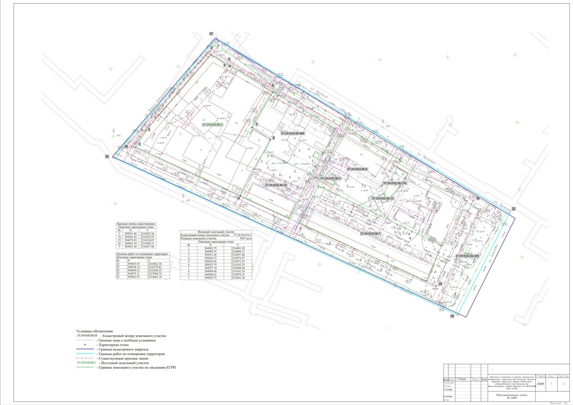
Проект внесения изменений в проект межевания территории города Иванова, ограниченной улицами Арсения, Бубнова, Пушкина, Марии Рябининой, утвержденный постановлением Администрации города Иванова от 06.05.2019 № 651
Флаг Здание Официальный сайт администрации города Иванова (архив) Официальный сайт администрации города Иванова (новая версия)
Версия для слабовидящих
Контактная информация ПРОТИВОДЕЙСТВИЕ КОРРУПЦИИ ОТКРЫТЫЕ ДАННЫЕ Защита от чрезвычайных ситуаций ОПОВЕЩЕНИЕ НАСЕЛЕНИЯ Действия населения при подтоплении территории Действия населения при выбросе в атмосферу химически опасных веществ Действия населения при неблагоприятных погодных явлениях Телефоны экстренных служб "Горячая линия" по вопросам нарушения трудового законодательства Документы по организованной перевозке групп детей автобусами Отловленные животные 2022 Отловленные животные 2023
Жалобы на всё
Не убран снег, яма на дороге, не горит фонарь? Столкнулись с проблемой — сообщите о ней!

Внесение изменений в проект межевания территории города Иванова, ограниченной улицами Арсения, Бубнова, Пушкина, Марии Рябининой, утвержденный постановлением Администрации города Иванова от 06.05.2019 № 651

Постановление Администрации города Иванова об утверждении от 12.04.2023 № 717

Предыдущая редакция

Проект планировки территории

1. Утверждаемая часть:

      
      

Назад

Администрация г. Иваново

Яндекс.Метрика